Cottage/Bungalow
1105 SW Rimrock Road
Prineville , OR 97754
MLS#: 220175232
$379,995
Property
Beds
3
Full Baths
1
1/2 Baths
None
Year Built
1965
Sq.Footage
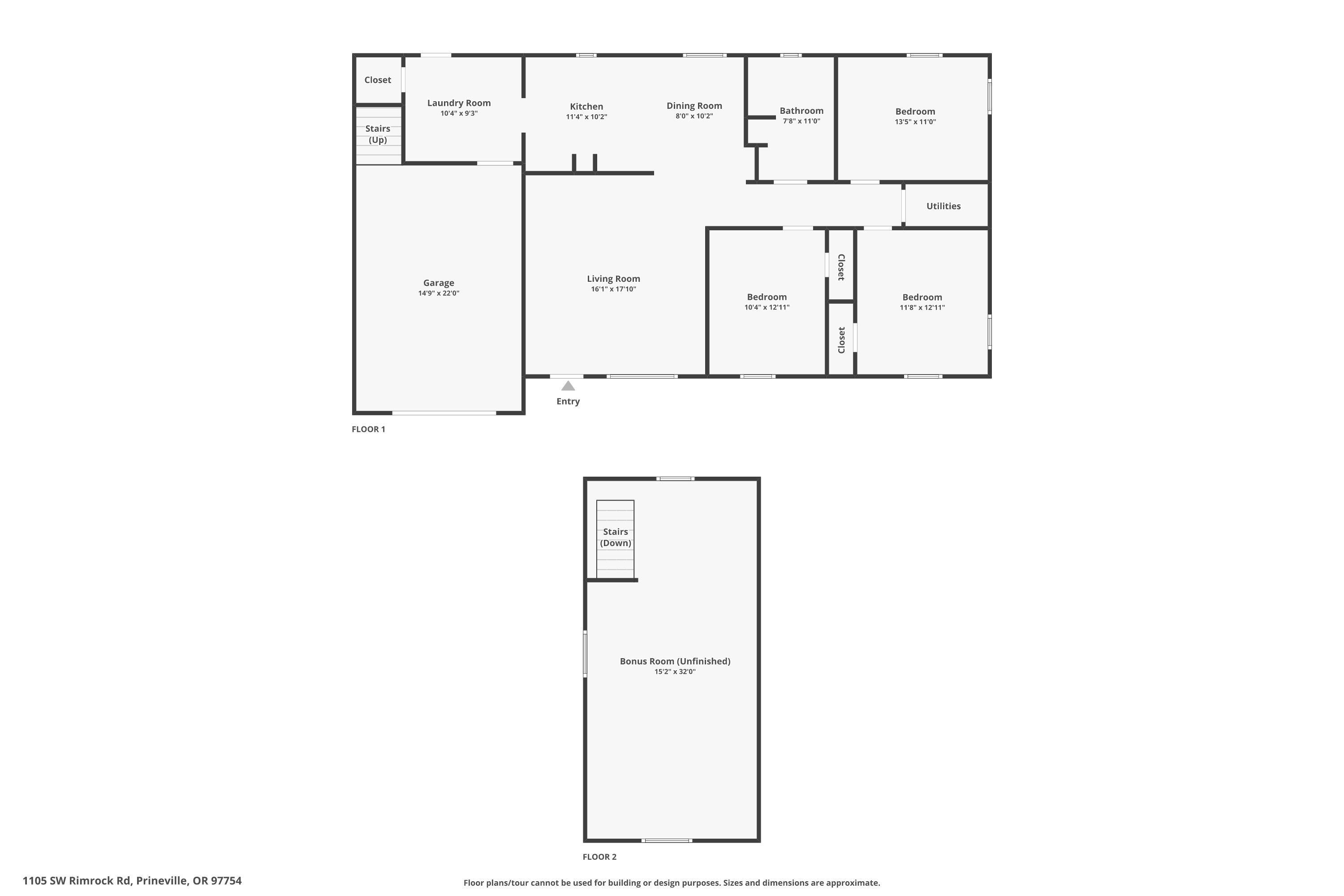
1,232
Nestled at the base of the butte is this charming remodeled home. This home is conveniently located next to Meadow Lakes Golf Course and just down the road from Rimrock & Crooked River Park and endless trails. This beautifully remodeled home sits on a corner lot and is fully fenced with RV parking, a covered patio, plenty of storage in the sheds and more. Above the garage you'll find an unfinished space with endless possibilities. Don't miss out on this opportunity! Seller is offering a $10,000 credit at close of escrow and home is being sold as-is.
Features & Amenities
Interior
-
Other Interior Features
Built-in Features, Ceiling Fan(s), Laminate Counters
-
Total Bedrooms
3
-
Bathrooms
1
-
Cooling YN
YES
-
Cooling
None, Ceiling Fan(s)
-
Fireplace YN
YES
-
Heating YN
YES
-
Heating
Electric, Forced Air, Natural Gas, Other
-
Pet friendly
N/A
Exterior
-
Garage
Yes
-
Garage spaces
1
-
Construction Materials
Frame
-
Parking
Attached, Attached Carport, Driveway, Gravel, On Street, RV Access/Parking
-
Patio and Porch Features
Deck
-
Pool
No
Area & Lot
-
Lot Features
Corner Lot, Landscaped, Level
-
Lot Size(acres)
0.18
-
Property Type
Residential
-
Property Sub Type
Single Family Residence
-
Architectural Style
Cottage/Bungalow
Price
-
Sales Price
$379,995
-
Tax Amount
2057.85
-
Zoning
R2; General Residential
-
Sq. Footage
1, 232
-
Price/SqFt
$308
HOA
-
Association
No
School District
-
Elementary School
Crooked River Elem
-
Middle School
Crook County Middle
-
High School
Crook County High
Property Features
-
Senior Community YN
NO
-
Sewer
Septic Tank
-
Tax Lot
0
-
Water Source
Private, Well
Schedule a Showing
Showing scheduled successfully.
Mortgage calculator
Estimate your monthly mortgage payment, including the principal and interest, property taxes, and HOA. Adjust the values to generate a more accurate rate.
Your payment
Principal and Interest:
$
Property taxes:
$
HOA fees:
$
Total loan payment:
$
Total interest amount:
$
Location
County
Crook
Elementary School
Crooked River Elem
Middle School
Crook County Middle
High School
Crook County High
Listing Courtesy of Amanda Johnson , Coldwell Banker Mayfield Realty
RealHub Information is provided exclusively for consumers' personal, non-commercial use, and it may not be used for any purpose other than to identify prospective properties consumers may be interested in purchasing. All information deemed reliable but not guaranteed and should be independently verified. All properties are subject to prior sale, change or withdrawal. RealHub website owner shall not be responsible for any typographical errors, misinformation, misprints and shall be held totally harmless.
Broker
Christy Symons Your - Central Oregon Realtor
Call Christy today to schedule a private showing.
* Listings on this website come from the FMLS IDX Compilation and may be held by brokerage firms other than the owner of this website. The listing brokerage is identified in any listing details. Information is deemed reliable but is not guaranteed. If you believe any FMLS listing contains material that infringes your copyrighted work please click here to review our DMCA policy and learn how to submit a takedown request.© 2024 FMLS.